Октябрьская набережная

 
площадь

от 21,2

 
завершение

сдан-сдача 4 квартал 2027

 
стоимость

от 6,3 млн. рублей

Жилой комплекс предполагает создание благоустроенной среды: закрытые дворы с площадками для спорта и игр, коммерческая инфраструктура на первых этажах, паркинги, площадка для выгула собак и станции зарядки электромобилей. Также в рамках проекта возводятся детский сад и школа.

Здесь будут не только газоны, но и специально подобранные крупномеры и многолетние кустарники, которые создадут уникальную атмосферу для прогулок. Дерен красный, ели, сосны, лиственницы, можжевельник, вейник, хоста, форзиция и многие другие растения будут радовать глаз во дворе.

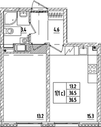
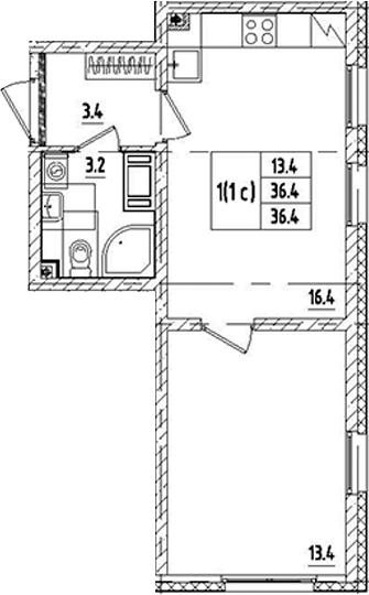
ТИПОВЫЕ ПЛАНИРОВКИ ОБЪЕКТОВ

Студии

Площадь от 20.2 м2

от 6.114.080 руб

2-комнатные (евро)

Площадь от 33.1 м2

от 9.200.790 руб

Скидка 8%

Акция действует на все квартиры: предоставляется скидка при 100% оплате собственными средствами, ипотекой, оплате материнским капиталом, единовременной оплате, субсидиях и НИС в размере 8% от стоимости квартиры.

ипотечный калькулятор

укажите параметры и рассчитайте ежемесячный платеж

6 200 000 11 800 000
20% 100%
1
1 30
* Расчёты не являются публичной офертой. Конечные условия кредитования определяются банком после рассмотрения заявки
Пожалуйста, укажите телефон
Согласен с политикой конфиденциальности
Необходимо согласие

Октябрьская набережная ЭТО

Памятник архитектуры конца 19 века. Соседствующее с ЖК здание.

Открывается в 7 минутах ходьбы. Вокзал - на противоположном берегу Невы.

Она и дала название комплексу. Хорошее место для любования Невой, прогулок, пробежек и катания на велосипеде. Для автомобилистов хороша и как путь к Центру (15 минут), так и к КАД (7 минут)

ОНЛАЙН КОНСУЛЬТАЦИЯ

получите больше информации о проекте
и задайте свои вопросы

НЕ НАШЛИ ПОДХОДЯЩЕЕ?

Укажите параметры недвижимости, и мы подберем варианты в течение дня бесплатно

Пожалуйста, укажите телефон
Согласен с политикой конфиденциальности
Необходимо согласие
Написать в мессенджер